по Ростове-на-Дону
от производителей
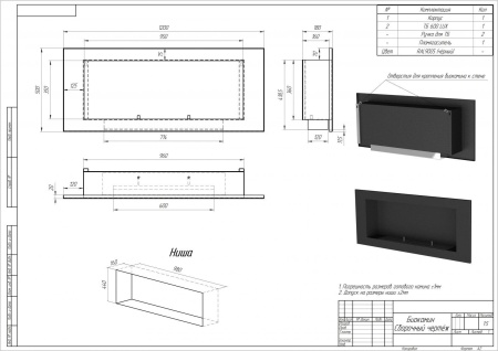
Встраиваемый биокамин / очаг Mercury Horizontal 1200 (SappFire)
Ищите надежный и безопасный камин, который можно установить в квартире? Мы предлагаем вам верное решение подобного вопроса! Настенный биокамин Mercury Horizontal 1200 SappFire – инновационная модель из нержавеющей стали, которая работает на безопасном экологически чистом этаноле. Данный экземпляр имеет ряд преимуществ перед аналогичными моделями. При изготовлении топки для биокамина Mercury Horizontal 1200 (SappFire) была использована шлифованная нержавеющая сталь. Очаг – это стильная комбинация шлифованной стали и матово-черной поверхности. Порошковая огнеупорная краска от немецких производителей выполняет одновременно декоративные и защитные функции. Топливный бак модели рассчитан на 3,5 л биотоплива. Такой объем обеспечивает 5-6 часов непрерывного горения при средней интенсивности пламени, регулировать которое позволяет специальная задвижка. Главные его отличия: каркас выполнен из термоустойчивого стального сплава толщиной 4 мм, в комплект входит защитное закаленное огнеупорное стекло (высотой 10, 12, 15 см), требования к эргономике изделия были усилены (теперь встроить его в стену стало еще проще), единая линия пламени была продлена для большей зрелищности, покраска произведена специальным огнеупорным видом краски.Живой огонь помогает расслабиться и привести свои мысли в порядок.Габариты
Технические
Для покупки товара в нашем интернет-магазине выберите понравившийся товар и добавьте его в корзину. Далее перейдите в Корзину и нажмите на «Оформить заказ» или «Быстрый заказ».
Когда оформляете быстрый заказ, напишите ФИО, телефон и e-mail. Вам перезвонит менеджер и уточнит условия заказа. По результатам разговора вам придет подтверждение оформления товара на почту или через СМС. Теперь останется только ждать доставки и радоваться новой покупке.
Оформление заказа в стандартном режиме выглядит следующим образом. Заполняете полностью форму по последовательным этапам: адрес, способ доставки, оплаты, данные о себе. Советуем в комментарии к заказу написать информацию, которая поможет курьеру вас найти. Нажмите кнопку «Оформить заказ».
Оплачивайте покупки удобным способом. В интернет-магазине доступно 3 варианта оплаты:
- Наличные при самовывозе или доставке курьером. Специалист свяжется с вами в день доставки, чтобы уточнить время и заранее подготовить сдачу с любой купюры. Вы подписываете товаросопроводительные документы, вносите денежные средства, получаете товар и чек.
- Безналичный расчет при самовывозе или оформлении в интернет-магазине: карты Visa и MasterCard. Чтобы оплатить покупку, система перенаправит вас на сервер системы ASSIST. Здесь нужно ввести номер карты, срок действия и имя держателя.
- Электронные системы при онлайн-заказе: PayPal, WebMoney и Яндекс.Деньги. Для совершения покупки система перенаправит вас на страницу платежного сервиса. Здесь необходимо заполнить форму по инструкции.
Экономьте время на получении заказа. В интернет-магазине доступно 3 варианта доставки:
- Курьерская доставка работает с 9.00 до 19.00. Когда товар поступит на склад, курьерская служба свяжется для уточнения деталей. Специалист предложит выбрать удобное время доставки и уточнит адрес. Осмотрите упаковку на целостность и соответствие указанной комплектации.
- Самовывоз из магазина или склада. Когда заказ поступит на склад, Вам придет уведомление. Мы свяжемся с Вами, уточним время в которое можете приехать.
- Транспортной компанией. Доставим товар в любой город до двери. Заказ можно оплатить при получении.
Самовывоз - 1-2 дня
Доставка курьером - 2-3 дня
Ростов-на-Дону:
Самовывоз - 3-4 дня
Доставка курьером - 4-5 дней
Самовывоз - 4-5 дней
Доставка курьером - 6-7 дней
Воронеж:
Самовывоз - 2 дня
Доставка курьером - 2-3 дня
Самовывоз - 6-7 дней
Доставка курьером -8-9дней
Москва:
Самовывоз - Сегодня
Доставка курьером - 1-2 дня








